Blackline HHP company logo
Detailed view of black vinyl commercial railing

Black Vinyl Railings Built for High-Traffic Businesses

BLACKline HHP commercial railing systems deliver durability, code-conscious design, and long-term performance for busy outdoor spaces.

Our railings support commercial projects that require low-maintenance materials, clear specifications, and a professional appearance for multi-family, rehab projects, and condominiums.

Get an Instant Quote.

Homeowners, use the mySalesman tool to get an instant quote for your project! A high-quality vinyl fence is just a few clicks away.

Start My Quote

Purchase Materials.

Buy directly from our expert team, and we'll ship materials and accessories directly to your home or job site.

Request a Quote

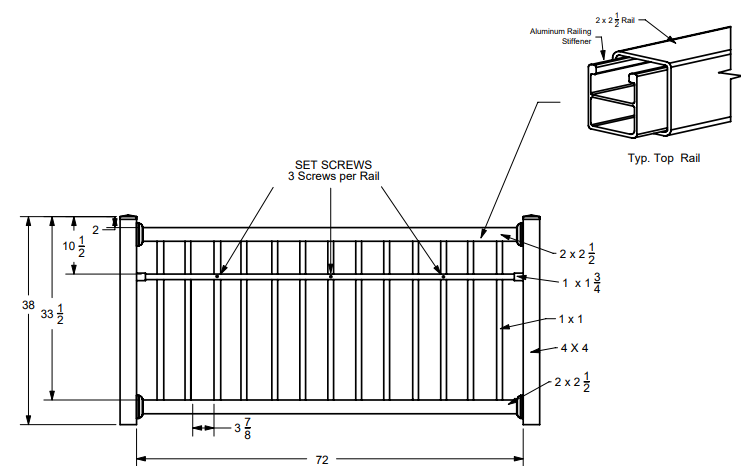
Commercial Railings

  • Style
  • Railing Color BLACK
  • Railing Height 38"-42"
  • Post Cap Style Customer Choice
  • Post Size 5" x 5" x 78" Gusseted
  • Rails 2" x 2.5" Aluminum Railing Stiffener
detailed view of BLACKline HHP vinyl railings

Choose From Our Railing Options

Each property is unique. That's why we offer various black vinyl railing styles to ensure the perfect fit. Every railing includes our premium UV protection and a limited lifetime warranty.

Our Black Vinyl Fence Advantages

Achieving The
Impossible

We've developed one of the most advanced fencing products available in the market today. Through decades of intensive research and extensive development, we successfully engineered a CPVC fence that offers high-heat performance and refined strength.

Superior To
Other Materials

Prior to our products, dark vinyl fences warped and sagged in harsh weather conditions and high temperatures. We changed that with our exclusive CPVC formula. Our proprietary manufacturing process allows us to produce products that don't chalk or otherwise distort or weaken due to harsh weather or hot temperatures.

Resistant
to Heat

Our premium vinyl products resist UV rays and extreme heat up to 200 degrees. The CPVC material absorbs and dissipates heat, allowing its unique design to stay strong and beautiful without melting, distorting, or sagging.

Lifetime
Warranty

Our fencing products come with a lifetime warranty on all materials. See our warranty page for more details.

Ultraviolet Rays
Protection

Using carbon black and extensive UV stabilizers, our fencing products pass rigorous field tests and maintain their overall appearance and rich color.

Strength &
Flexibility

Our vinyl products retain flexibility in both warm and cold temperatures, which means our engineered fences will not crack or splinter and are designed to accommodate normal temperature fluctuations.

Common Questions About Our Commercial Railings

Our commercial railings are ideal for multi-family housing, office buildings, retail spaces, hospitality properties, healthcare facilities, and any commercial application requiring durable, professional-grade railing systems that maintain their sleek appearance under heavy use.

Our CPVC proprietary ultraviolet (UV) protection formula is engineered for durability and impact resistance, making it ideal for commercial environments. Unlike wood or aluminum that can dent, chip, or splinter, BLACKline HHP railings maintain their structural integrity and appearance even with constant use.

Yes, our commercial railing systems can be configured to meet ADA requirements and local building codes. We provide technical specifications and can work with architects and contractors to ensure compliance for your specific project.

Absolutely. We provide CSI specifications, CAD files, shop drawings, and technical documentation to make it easy for architects and designers to specify our products. Our team works directly with design professionals to ensure seamless project integration.

Lead times vary based on project size and customization requirements. Contact our commercial sales team with your project details to receive an accurate timeline and discuss expedited options, if needed.

Yes, we provide installation guidelines, technical support, and can connect commercial contractors with resources to ensure successful project completion. Our dealer network includes experienced professionals familiar with commercial installation requirements.

Connect with us