Blackline HHP company logo
Detailed view of black vinyl residential railing

Black Vinyl Railings Built For Residential Properties

Railings engineered for everyday residential use, delivering dependable strength, low maintenance, and lasting peace of mind.

BLACKline HHP railings maintain rich color and a polished appearance over time, helping your outdoor spaces feel refined, secure, and thoughtfully designed.

Get an Instant Quote.

Homeowners, use the mySalesman tool to get an instant quote for your project! A high-quality vinyl fence is just a few clicks away.

Start My Quote

Purchase Materials.

Buy directly from our expert team, and we'll ship materials and accessories directly to your home or job site.

Request a Quote

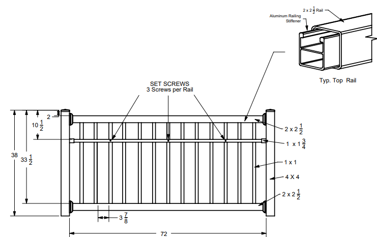
Residential Railings

  • Style
  • Railing Color BLACK
  • Railing Height 38"-42"
  • Post Cap Style Customer Choice
  • Post Size 5" x 5" x 78" Gusseted
  • Rails 2" x 2.5" Aluminum Railing Stiffener
detailed view of BLACKline HHP vinyl railings

Choose From Our Railing Options

Each property is unique. That's why we offer various black vinyl railing styles to ensure the perfect fit. Every railing includes our premium UV protection and a limited lifetime warranty.

Our Black Vinyl Fence Advantages

Achieving The
Impossible

We've developed one of the most advanced fencing products available in the market today. Through decades of intensive research and extensive development, we successfully engineered a CPVC fence that offers high-heat performance and refined strength.

Superior To
Other Materials

Prior to our products, dark vinyl fences warped and sagged in harsh weather conditions and high temperatures. We changed that with our exclusive CPVC formula. Our proprietary manufacturing process allows us to produce products that don't chalk or otherwise distort or weaken due to harsh weather or hot temperatures.

Resistant
to Heat

Our premium vinyl products resist UV rays and extreme heat up to 200 degrees. The CPVC material absorbs and dissipates heat, allowing its unique design to stay strong and beautiful without melting, distorting, or sagging.

Lifetime
Warranty

Our fencing products come with a lifetime warranty on all materials. See our warranty page for more details.

Ultraviolet Rays
Protection

Using carbon black and extensive UV stabilizers, our fencing products pass rigorous field tests and maintain their overall appearance and rich color.

Strength &
Flexibility

Our vinyl products retain flexibility in both warm and cold temperatures, which means our engineered fences will not crack or splinter and are designed to accommodate normal temperature fluctuations.

Common Questions About Our Residential Railings

While we provide assembly instructions and installation guidelines, many homeowners choose professional installation to ensure compliance with safety standards and structural integrity. We can connect you with experienced installers in your area who are familiar with our products.

We offer a range of residential railing styles from clean, modern designs to more ornamental options. Each style maintains our signature deep black finish and is engineered with the same high-performance CPVC formula as our fencing products for lasting beauty and strength.

While the initial investment may be higher than wood, BLACKline HHP railings eliminate ongoing costs for staining, sealing, painting, and eventual replacement. Over the product's lifetime, you'll save significantly on maintenance while enjoying superior performance and appearance.

While the material surface absorbs heat, it does not act as a radiator or transfer significant heat to the surrounding air. Our high-heat formula is specifically designed to manage thermal load, keeping the railing structurally sound and safe to touch even in direct sunlight.

Yes, we work with homeowners to provide customized quotes that ensure proper fit and coverage for your unique space. Contact our sales team to discuss your specific dimensions and requirements. We can also put you in contact with an installer near you.

Our residential railing systems are designed to meet building code requirements and safety regulations. We recommend consulting with local building authorities to confirm specific requirements for your area, and our team can provide technical specifications as needed.

Connect with us